Działka Kisielice
Kisielice Pokaż na mapie ›
Ogłoszenie archiwalne Wygasło: Piątek, 24 Październik, 2025 16:10
125 000 zł
Szczegóły ogłoszenia
- Kategoria: Działki i grunty / Sprzedaż
- Sprzedaż:Pośrednik
- Cena: 125 000 zł
Opis oferty
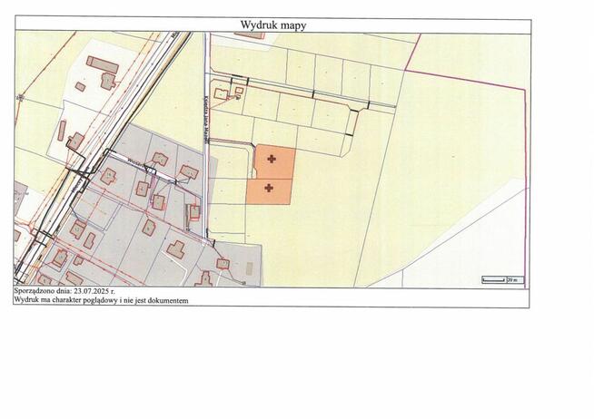
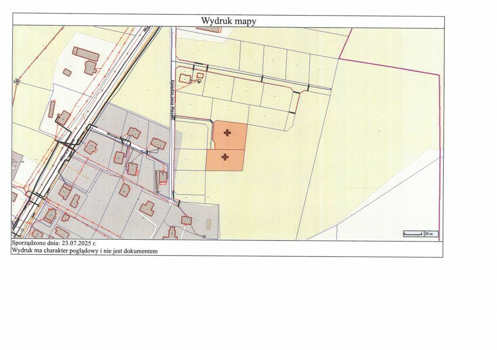
Kisielice to wyjątkowa lokalizacja, która zachwyca zarówno osób szukających spokoju, jak i tych, którym zależy na bliskości infrastruktury miejscowości. Dzięki temu, że nieruchomość znajduje się w tak przyjaznym i dynamicznie rozwijającym się środowisku, przyszły właściciel będzie miał niepowtarzalną okazję do stworzenia tu swojego wymarzonego domu lub prowadzenia działalności usługowej. Nie przegap tej wyjątkowej okazji! Serdecznie zapraszam do kontaktu w celu ustalenia szczegółów.Na sprzedaż działka budowlano-usługowa za cenę 125 000 PLN, zlokalizowana w Kisielicach. Działka ma kształt kwadratu, co sprzyja różnorodnym projektom budowlanym. Otoczona nowo wybudowanymi domami, znajduje się na osiedlu domów jednorodzinnych, co gwarantuje spokojną i rodzinną atmosferę. Na działce dostępny jest prąd, a woda znajduje się bezpośrednio przy działce. W sąsiedztwie dostępna jest również do zakupu działka o powierzchni 1 088 m², co daje możliwość rozszerzenia inwestycji. Okolica charakteryzuje się miłym sąsiedztwem, co czyni tę lokalizację wyjątkowo atrakcyjną.
Czy wiesz, że możemy przygotować dla Ciebie prezentację on-line nieruchomości? Skontaktuj się z naszym Agentem i zapytaj o szczegóły.
Pomimo, iż Doradcy Metrohouse przykładają szczególną staranność do rzetelnego prezentowania informacji o nieruchomości, nie zawsze jest możliwa weryfikacja wszystkich danych przekazanych od osób trzecich. Niniejsza prezentacja oferty nie jest ofertą w rozumieniu Kodeksu Cywilnego i ma charakter wyłącznie informacyjny.
Sprawdź zainteresowanie tym ogłoszeniem
Wyświetlenia
Data dodania
Ostatnio widziany
Obserwujących
Wysłane zapytania
Odsłony telefonu
To ogłoszenie jest archiwalne i może być nieaktualne.
- Wypromuj ogłoszenie
- Zgłoś naruszenie
- Edytuj/usuń ogłoszenie
- Udostępnij ogłoszenie
- Dodaj na Facebook

































